

Pro závěsné WC
Pro montáž před nosnou stěnu nebo do sádrokartonové konstrukce – pro osoby se sníženou hybností
Pro užití s oddáleným nebo senzorovým ovládáním
Pro namontování opěrných madel
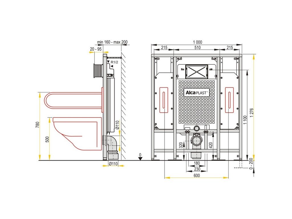
Pro tloušťku podlah 0–200 mm
Pro montáž závěsného WC s připojovací roztečí 180 mm nebo 230 mm
Tento inovovaný předstěnový instalační systém ALCA s kódovým označením AM101/1300H Sádromodul nahrazuje modelovou řadu A101/1300H Sádromodul. Instalace těchto systému je nyní rychlejší a k jejich montáži vám nyní postačí pouze jeden klíč.
• Normy:
ČSN EN 14124, ČSN EN 14055, ČSN EN ISO 10535, ČSN 732030, ČSN EN 997
Technické parametry:
Připojení vody zezadu nebo shora montážními otvory G1/2 "
Funkční rozsah tlaku vody 0,05 – 0,8 MPa
Doporučený rozsah tlaku vody 0,3 – 0,5 MPa
Velké spláchnutí 6 – 9 l
Malé spláchnutí 2,5 – 3,5 l
Standardní nastavení velkého spláchnutí 6 l
Standardní nastavení malého spláchnutí 3 l
Hygienická rezerva 3 l
Objem vody v nádržce 9 l
Zátěžová zkouška pro instalaci závěsného WC 400 kg
Zátěžová zkouška pro instalaci madla 200 kg
• Vlastnosti
Obsahuje dávkovač WC tablet
Rám pro zavěšení závěsného WC s deskami pro instalaci invalidního madla
Nastavitelné kotvící výsuvné nohy s brzdou v rozmezí 0–200 mm
Viditelné označení nivelace a středové rysky
Posuvný mechanismus držáku odpadu v osmi polohách ve vzdálenosti 0–93 mm
Rohový ventil s možností na napojení na potrubní systém Mepla
Konstrukce rámu dovoluje kotvení k samostatné dostatečně nosné sádrokartonové příčce nebo před nosnou stěnu
Nainstalovaný systém se zaklopí sádrokartonovými deskami a nejsou potřeba žádné přídavné vyztužující ani kotvicí prvky
Konstrukce polystyrenové izolace zabraňuje rosení na povrchu nádržky a tlumí prostup vibrací z nádržky do stavební konstrukce
Příprava na připojení držáku s DG1/2" přechodem pro bidetovací sedátka a spršky
Duální splachování nezávisle nastavitelné s hygienickou rezervou
Možnost vestavby oddáleného nebo senzorového splachování
Kompatibilní se všemi ovládacími tlačítky Alcaplast
Servisní práce bez použití nářadí
Přívod vody zezadu/shora uprostřed
Nádržka je vyrobena z jednoho kusu, čímž je zaručena 100% nepropustnost
Kryt servisního otvoru zjednodušuje montáž a brání pronikání vlhkosti a nečistot
Montážní hloubka nastavitelná v rozmezí 20–95 mm
Stavební hloubka 125 mm
Materiál nosné konstrukce: kov ošetřený práškovou barvou
Doplňkové parametry
| Kategorie: | Podomítkové nádrže |
|---|---|
| Hmotnost: | 1 kg |
| EAN: | 8595580553920 |
-
Náhledová fotografie
-
Sádromodul WC modul pro osoby se sníženou hybností
-
Technický nákres
-
Montážní návod
-
AlcaPLAST - katalog a ceník náhradních dílů
-
AlcaPLAST - kompletní katalog
-
AlcaPLAST - kompletní ceník
-
AlcaPLAST - předstěnové instalační systémy
-
AlcaPLAST - podlahové žlaby
-
AlcaPLAST - venkovní odvodnění
-
AlcaPLAST - technický katalog
Hodnocení produktu
Buďte první, kdo napíše příspěvek k této položce.
Diskuze
Buďte první, kdo napíše příspěvek k této položce.
Alcadrain, součást Alca Group, je předním výrobcem sanitární techniky ve střední a východní Evropě. Tato společnost, dříve známá jako Alcaplast, nabízí široký sortiment vysoce kvalitních sanitárních produktů, včetně ventilů, sifonů, odvodňovacích systémů a WC sedátek. S více než 1000 produkty v portfoliu se Alcadrain neustále rozrůstá a získává uznání díky svým inovativním a designově atraktivním výrobkům prémiové značky Alca.
Alcadrain se pyšní svou spolehlivostí a bezporuchovostí. Každý výrobek je pečlivě testován na kvalitu v moderním výrobním závodě v Břeclavi, což zaručuje dlouhou životnost a funkčnost. Produkty této značky jsou ideální jak pro novostavby, tak pro rekonstrukce.
Jako součást Alca Group, která zahrnuje také FV Plast, největšího českého výrobce potrubních systémů, a Alcafix, specialistu na modulární systémy pro výstavbu a rekonstrukci koupelnových prostor a toalet, se Alcadrain zaměřuje na vytváření výrobků, které nejen splňují očekávání zákazníků, ale také přispívají k vyšší kvalitě života.
Cílem Alca Group je dodávat na trh spolehlivé a funkční produkty, které zvyšují komfort a kvalitu každodenního života.

Související produkty
Podobné produkty
Předstěnový instalační modul pro bidet.
Předstěnový instalační modul pro WC k obezdění.

