FLEXIA vanička z litého mramoru s možností úpravy rozměru, 130x70cm


Řez vaničky na atypický rozměr. Více informací zde.
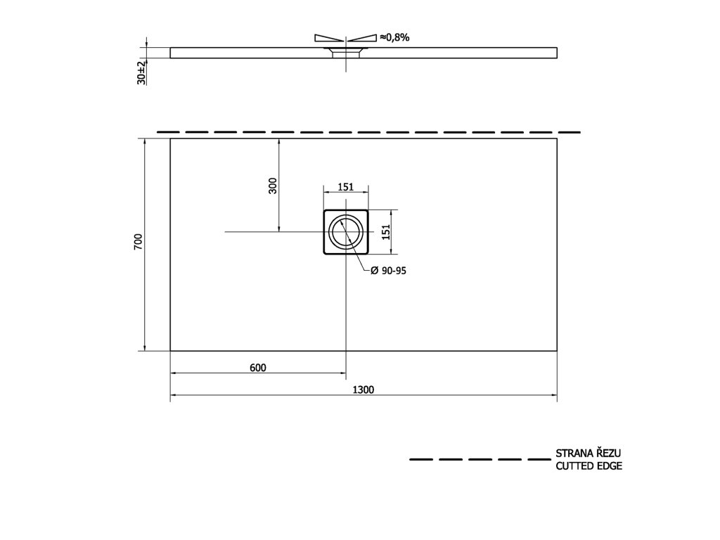
Tento rozměr má jednu ze stran řezanou, a tak není pohledová. Viz schéma, kde je tato strana označena.
Možnost úpravy rozměrů vaničky svépomocí dle přiloženého návodu. Úpravou rozměrů vaničky je zachována standardní záruka na výrobek.
Litý mramor - materiál s tepelně-izolačními vlastnostmi, které oceníte při každém doteku
Používá se pro výrobu sprchových vaniček, van, umyvadel i dalších produktů. Vyrábí se ze směsi mletého vápence, sklářského písku, polyesterové pryskyřice a barviv. Výrobky z litého mramoru se vyznačují vysokou pevností, nulovým průhybem, stabilitou a elegantním designem.
Vanička z litého mramoru FLEXIA je pravým řešením zejména při výměně vany za sprchový kout. Elegantní design vaničky, ke které je na výběr sifon s krytkou ve třech barevných provedeních, dodá vašemu sprchovému koutu nezaměnitelný a originální vzhled.
- Konstrukce podlahy - vaničky umožňuje její instalaci i do zcela netypických prostor jako jsou kouty s výřezy, popř. do koutů nepravidelného tvaru (vaničky s úkosem)
- Sprchovou podlahu je možné řezem upravit na požadovaný rozměr. Řez podlahou FLEXIA musí být rovný (krácení, úkosy, výřezy), nelze řezat do rádiusu (oblouky). Požadavek na úpravu rozměru uvádějte zároveň s objednávkou vaničky.
- Příplatek za úpravu rozměru dle platného ceníku
- Čtvercové a obdélníkové vaničky nabízíme v šířce od 80 do 180 cm a v délce od 70 do 100 cm
- Čtvrtkruhové vaničky nabízíme v rozměrech 80x80 až 120x90 cm
- Vaničky lze instalovat s nožičkami; vhodný typ nožiček je uveden u každé vaničky.
- Standardní provedení v bílé barvě, možno objednat i barevné provedení dle vzorníku RAL lesk za příplatek 30 % k základní ceně
(Barevné provedení RAL mat není možné.)
Při zadávání rozměrů je důležité počítat s tolerancí na přesnost řezu. Sprchové podlahy FLEXIA jsou řezány na požadovaný rozměr na strojní formátovací pile s tolerancí ± 2 mm na metr řezu. Následný řez není pohledový.
Umístění otvoru na sifon je pevně daný a nelze ho změnit. Okolo sifonu je, vzhledem k pevnosti podlahy, doporučeno případný řez vést minimálně 15 cm od středu sifonu.
Z důvodu dilatace nedoporučujeme montáž vaniček pod obklad.
- Nutno objednat samostatně speciální sifon s krytkou. Na výběr je sifon s krytkou v nerezu, bílé, černé nebo zlaté matné barvě.
Na sprchové vaničky POLYSAN vyrobené z litého mramoru poskytujeme záruku 2 roky. Podmínkou záruky je správné usazení podle návodu.
Příklady atypického řezu:


Doplňkové parametry
| Kategorie: | Sprchové vaničky obdélníkové |
|---|---|
| Hmotnost: | 60 kg |
| EAN: | 8590729000013 |
| Šířka: | 700 |
| Výška: | 30 |
| Délka: | 1300 |
| Balení: | 1 |
| ? Barva: | Bílá |
| ? Materiál: | Litý mramor |
| Průměr odpadu: | 90 |
| Rozměr: | 130x70x3 cm |
| ? Série: | FLEXIA |
| Tvar: | Obdélníkové |
| Záruka: | 2 roky |
| Pumpička: | FLEXIA |
| Barva: | Bílá |
| Šířka: | 700 |
| Výška: | 30 |
| Balení: | 1 |
| Tvar: | Obdélníkové |
| Průměr odpadu: | 90 |
| Rozměr: | 130x70x3 cm |
| Délka: | 1300 |
| Materiál: | Litý mramor |
| Záruka: | 2 roky |
| Serie: | FLEXIA |
| Hmotnost: | 57 |
Hodnocení produktu
Buďte první, kdo napíše příspěvek k této položce.
Diskuze
Buďte první, kdo napíše příspěvek k této položce.

Polysan s.r.o. je osvědčený český výrobce koupelnového vybavení s tradicí od roku 1996. Pokud hledáte vanu nebo sprchové řešení, které vydrží roky provozu, dobře vypadá a nezklame při každodenním používání, Polysan je sázka na jistotu.
Značka staví na kombinaci funkčního designu, kvalitních materiálů a rozumné ceny. Nejde o „designovku na efekt“, ale o promyšlené produkty, které fungují v běžné domácnosti i v náročném provozu hotelů a wellness center.
Proč zvolit Polysan
- ✔ Český výrobce s dlouhodobou dostupností náhradních dílů
- ✔ Široký výběr rozměrů a typů – řešení i pro atypické koupelny
- ✔ Odolné materiály s dlouhou životností
- ✔ Možnost hydromasážních systémů a doplňků
- ✔ Výborný poměr cena / výkon
Nejžádanější produkty Polysan
- 🛁 Vany Polysan – obdélníkové, rohové, asymetrické i volně stojící
- 💦 Hydromasážní vany a systémy – relaxace bez nutnosti wellness centra
- 🚿 Sprchové kouty a zástěny Polysan
- 🚿 Sprchové vaničky Polysan – akrylát i litý mramor
- 🌊 Masážní sprchové panely
Jaké vany Polysan nabízí
- Obdélníkové a rohové vany pro klasické koupelny
- Asymetrické vany – ideální tam, kde se počítá každý centimetr
- Oválné a volně stojící vany pro moderní interiéry
- Sprchové vany a vany s dvířky pro snadný vstup
- Prémiová řada MONOLITH, UNITY CONCEPT
- Hydromasážní a perličkové vany
Celkem Polysan nabízí téměř 100 modelů van v různých rozměrech a provedeních.
Materiály, které dávají smysl
- Akrylát – příjemný na dotek, lehký, snadná údržba
- Litý mramor – maximální pevnost a stabilita
- Gelcoat – hladký, odolný povrch
- Solid Surface – moderní vzhled bez kompromisů
Polysan je ideální volba pro zákazníky, kteří chtějí kvalitní koupelnu bez zbytečných experimentů. Vyberte si prověřené řešení na Koupelny-online.cz a získejte vybavení, které bude fungovat dlouhodobě – nejen dobře vypadat.
| Výrobní společnost : | Polysan |
|---|---|
| Adresa : | Nesměřice 52, 285 22 Zruč nad Sázavou Středočeský kraj |

